Requirements for Mounting
Requirements for the Mounting Location:
WARNING
Danger to life due to fire or explosion
Despite careful construction, electrical devices can cause fires. This can result in death or serious injury.
- Do not mount the product in areas containing highly flammable materials or gases.
- Do not mount the product in potentially explosive atmospheres.
Requirements:
-
Do not mount the inverter on a pillar.
-
Do not mount the inverter in living areas.
-
A solid support surface must be available (e.g. concrete or masonry, free-standing constructions).
-
The mounting location must be suitable for the weight and dimensions of the product ( > Technical Data).
-
The installation site can be exposed to direct solar irradiation. There is, however, the possibility that the product reduces its power output to avoid overheating due to high temperatures.
-
The mounting location should be freely and safely accessible at all times without the need for any auxiliary equipment (such as scaffolding or lifting platforms). Non-fulfillment of these criteria may restrict servicing.
-
The DC load-break switch of the product must always be freely accessible.
-
All ambient conditions must be met ( > Technical Data).
-
To ensure optimum operation, the ambient temperature should be between -25°C (-13°F) and 60°C (140°F).
Permitted and prohibited mounting positions:
-
The product may only be mounted in a permitted position. This will ensure that no moisture can penetrate the product.
-
The product should be mounted such that the LED signals can be read off without difficulty.

Permitted and prohibited mounting positions
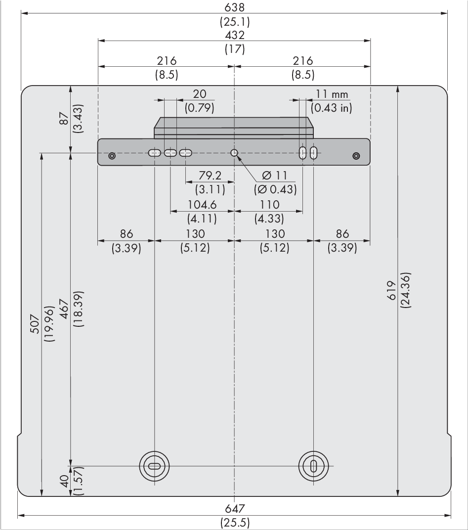
Dimensions for mounting:

Position of the anchoring points(Dimensions in mm (in))
Recommended clearances:
To guarantee optimal operation and adequate heat dissipation for the inverter, the following requirements for clearances should be observed. This will prevent the inverter power output from being reduced due to excessive temperatures. However, smaller clearances are permitted without causing any risk.

Prescribed clearances in accordance with the National Electrical Code® or Canadian Electrical Code® CSA C22.1
Under certain conditions, the National Electrical Code® or the Canadian Electrical Code® CSA C22.1 specify greater clearances.
- Ensure that the prescribed clearances in accordance with the National Electrical Code® or Canadian Electrical Code® CSA C22.1 are adhered to.
-
Maintain the recommended clearances to walls as well as to other inverters or objects.
Ensure adequate clearance on the right-hand side of the product below the fan.
-
If multiple products are mounted in areas with high ambient temperatures, increase the clearances between the products and ensure sufficient fresh-air supply.

Recommended clearances(Dimensions in mm (in))