Requisitos para el montaje
Requisitos del lugar de montaje:
ADVERTENCIA
Peligro de muerte por fuego o explosión
A pesar de estar cuidadosamente construidos, los equipos eléctricos pueden originar incendios. Esto puede causar lesiones graves o incluso la muerte.
- No instale el producto en áreas en las que se encuentren materiales fácilmente inflamables o gases combustibles.
- No instale el producto en áreas potencialmente explosivas.
Requisitos:
-
Está prohibido el montaje en un poste.
-
Está prohibido el montaje en un espacio habitable.
-
Debe elegirse una superficie firme (por ejemplo, hormigón o mampostería, soportes autónomos).
-
El lugar de montaje debe ser adecuado para el peso y las dimensiones del producto ( > Datos técnicos).
-
El lugar de montaje puede estar expuesto a la irradiación solar directa. Sin embargo, es posible que el producto reduzca su potencia debido a las altas temperaturas para evitar un sobrecalentamiento.
-
El lugar de montaje debe ser accesible de forma fácil y segura, sin necesidad de medios auxiliares adicionales como, p. ej., andamios o plataformas elevadoras. De lo contrario, las visitas de mantenimiento solo serán posibles de manera limitada.
-
El interruptor-seccionador de potencia de CC del producto deber ser accesible en todo momento.
-
Deben cumplirse las dimensiones climáticas ( > Datos técnicos).
-
A fin de garantizar el funcionamiento óptimo del equipo, la temperatura ambiente debe estar entre -25 °C (-13 °F) y 60 °C (140 °F).
Posiciones de montaje permitidas y no permitidas:
-
El producto debe instalarse siempre en una posición autorizada De esta manera se garantiza que no pueda entrar humedad en el producto.
-
El producto debería instalarse de tal forma que las señales de los leds puedan leerse sin problemas.

Posiciones de montaje permitidas y no permitidas
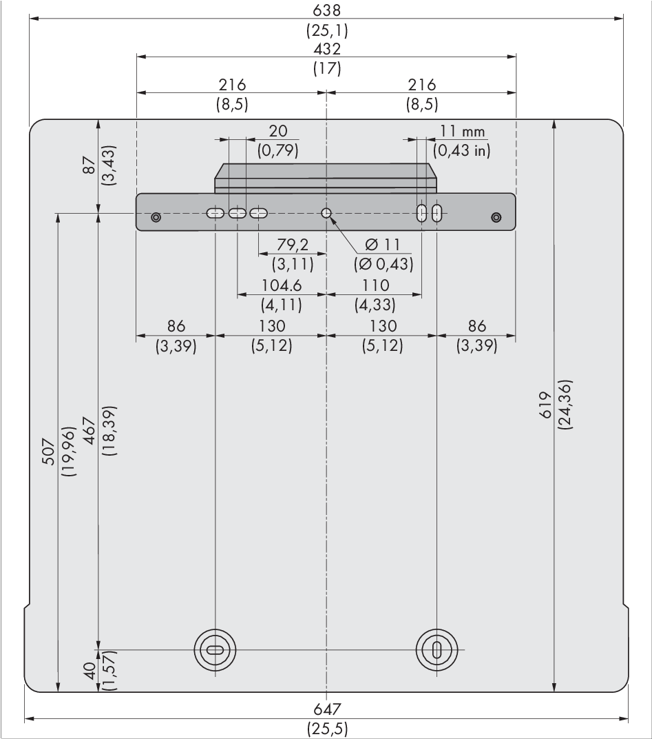
Dimensiones para el montaje:

Posición de los puntos de fijación (Medidas en mm (in))
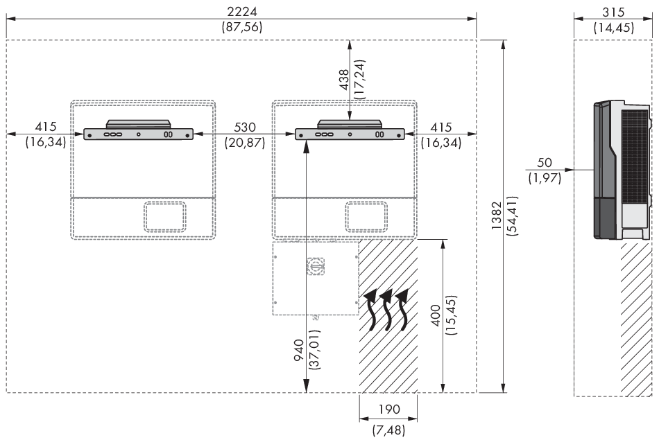
Distancias recomendadas:
Para garantizar que el inversor disipe el calor y funcione de manera óptima, respete las distancias mínimas. De este modo evitará que el inversor reduzca su potencia debido a temperaturas demasiado elevadas. No supone ningún peligro dejar distancias menores.

Distancias prescritas según el National Electrical Code® o el Canadian Electrical Code® CSA C22.1
En determinadas circunstancias, el National Electrical Code® o el Canadian Electrical Code® CSA C22.1 pueden exigir unas distancias mayores.
- Asegúrese de que se cumplen las distancias especificadas en el National Electrical Code® o en el Canadian Electrical Code® CSA C22.1.
-
Intente respetar las distancias recomendadas respecto a las paredes, otros inversores u otros objetos.
Asegúrese de que haya suficiente espacio debajo del ventilador (en la parte derecha del producto).
-
Si instala varios productos en zonas con temperaturas ambiente elevadas, aumente la distancia entre los productos y procure que entre suficiente aire fresco.

Distancias recomendadas (Medidas en mm (in))