Conditions requises pour le montage
Exigences relatives au lieu de montage :
AVERTISSEMENT
Danger de mort par incendie ou explosion
En dépit d’un assemblage réalisé avec le plus grand soin, tout appareil électrique peut présenter un risque d’incendie. Il peut en résulter des blessures graves, voire la mort.
- N’installez pas le produit à proximité de matériaux ou de gaz facilement inflammables.
- N’installez pas le produit dans des zones présentant un risque d’explosion.
Conditions requises :
-
Le montage sur un poteau n’est pas autorisé.
-
Le montage dans une surface habitable n’est pas autorisé.
-
Choisissez pour le montage un support stable (par exemple béton ou ouvrage de maçonnerie, châssis autonome).
-
Le lieu de montage doit être adapté au poids et aux dimensions du produit ( > Caractéristiques techniques).
-
Le lieu de montage peut être soumis à un rayonnement solaire direct. Il est également possible que le produit diminue sa puissance en raison de températures trop élevées afin d’éviter une surchauffe.
-
Le lieu de montage devrait toujours être sécurisé et accessible facilement, sans qu’il soit nécessaire de recourir à un équipement supplémentaire (par exemple à des échafaudages ou à des plates-formes élévatrices). Dans le cas contraire, les interventions SAV ne pourront être effectuées que de manière restreinte.
-
L’interrupteur-sectionneur DC du produit doit toujours être librement accessible.
-
Les conditions climatiques doivent être remplies ( > Caractéristiques techniques).
-
Pour assurer un fonctionnement optimal, la température ambiante doit être comprise entre -25 °C (-13 °F) et 60 °C (140 °F).
Positions de montage autorisées et non autorisées :
-
Le produit doit être monté uniquement dans une position autorisée. Cela permet d’éviter que de l’humidité pénètre dans le produit.
-
Le produit doit être monté de façon à ce que vous puissiez lire sans problème les signaux des DEL.

Positions de montage autorisées et non autorisées
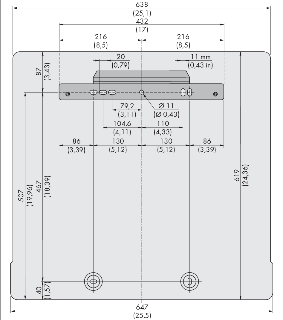
Cotes de montage :

Position des points de fixation (Dimensions en mm (in))
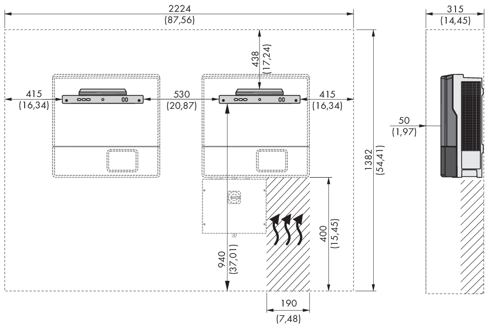
Distances recommandées :
Afin de garantir un fonctionnement optimal et une dissipation adéquate de la chaleur, les exigences suivantes relatives aux distances devraient être respectées. Vous éviterez ainsi que l’onduleur ne perde de sa puissance en raison d’une température trop élevée. Des distances plus courtes sont permissibles sans aucun risque.

Distances prescrites par le National Electrical Code® ou le Canadian Electrical Code® CSA C22.1
Dans certaines cas, le National Electrical Code® ou le Canadian Electrical Code® CSA C22.1 prescrivent des distances supérieures.
- Assurez-vous que les distances prescrites dans le National Electrical Code® ou le Canadian Electrical Code® CSA C22.1 sont respectées.
-
Vous devez respecter les distances recommandées par rapport aux murs, aux autres onduleurs et autres objets.
Veillez à ce qu’une distance adéquate soit respectée sur le côté droit du produit sous le ventilateur.
-
Si plusieurs produits sont montés dans une zone soumise à des températures ambiantes élevées, les distances entre les produits doivent être augmentées et un apport suffisant d’air frais doit être assuré.

Distances recommandées (Dimensions en mm (in))