ESPAÑOL
ENGLISH
DEUTSCH
ESPAÑOL
FRANÇAIS
ITALIANO
PORTUGUÊS
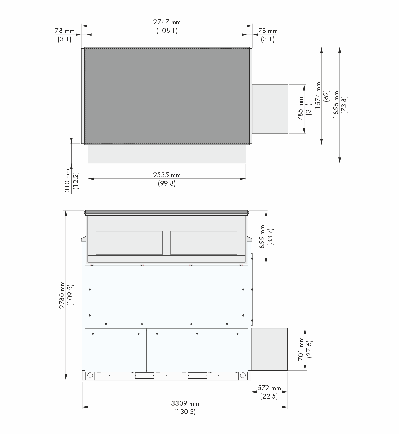
Dimensiones en el inversor
Dimensiones del silenciador en la salida de aire (vista desde arriba) (Medidas en mm (in))
Requisitos de montaje
Material de montaje adicional necesario
Índice
toggle menu
Indicaciones sobre este documento
Área de validez
Niveles de advertencia
Marcas de texto en el documento
Seguridad
Uso previsto
Indicaciones de seguridad
Contenido de la entrega
Requisitos de montaje
Dimensiones en el inversor
Material de montaje adicional necesario
Registro de los números de serie de los inversores y de los componentes
Preparación de los trabajos de montaje en la MV Power Station
Desmontaje de la rejilla de entrada de aire del inversor
Preparación del inversor sin techo para el montaje del silenciador
Desmontaje del techo del inversor
Montaje del silenciador en la entrada de aire del inversor
Estructura del silenciador en la entrada de aire del inversor
Montaje del silenciador en la entrada de aire del inversor
Desmontaje de las cubiertas para el servicio técnico del conducto de aire
Montaje del conducto de aire en el silenciador
Montaje de las cubiertas para el servicio técnico
Montaje de la cubierta lateral
Montaje del silenciador en la salida de aire
Trabajos de montaje finales en la MV Power Station
Apertura de la cubierta de la entrada de aire
Comprobación y limpieza del silenciador
Materiales de embalaje utilizados
Datos técnicos